Квартира с видом на реку
Квартира
Метраж: 92 кв.м.
Город: Краснодар
Фотограф: Михаил Чекалов
Основная концепция светлый и современный интерьер, максимально функциональный на такой площади с сохранением личного пространство для всех членов семьи.
Задача:
Сохранить в определенных помещениях вид и умудриться разделить детей по своим зонам.
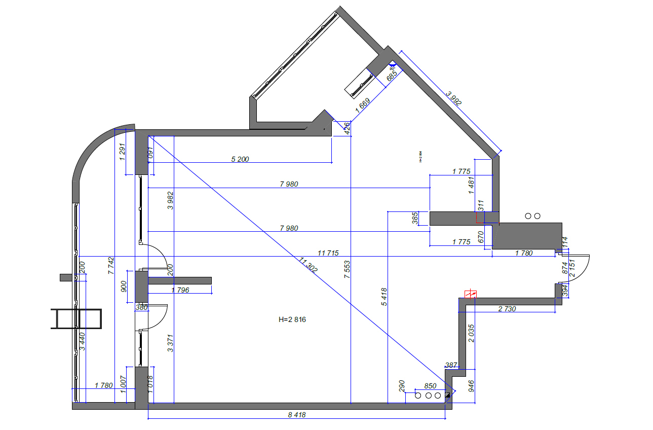
Исходная планировка
Планировочное решение
Идея проекта
Николай, хозяин квартиры
Получилось действительно комфортно.
Исходная планировка
Планировочное решение
Очень спокойный интерьер с тактичным вкраплением ярких деталей родился в ответ на пожелания заказчиков.

Молодая семья с новорожденным сыном хотела пространство для жизни, которое долго не надоест. Поэтому для стен и мебели я выбрала чуть «пыльные» серо-голубые оттенки, которые стали отличным фоном для ярких контрастных элементов. Цвет введен точечно в детали, которые при желании легко заменить.
Я даже не думал, что на нашей небольшой площади получится так развернуться.
Квартира для молодой семьи с двумя детьми, школьник и дошкольник, мальчик и девочка.

Квартиру покупали из за вида на парк и реку, именно он стал самой решающей точкой.
Пожелание было современного интерьера с элементами, напоминающими море, песок, отдых и греческие каникулы.
В этом проекте мы должны были сделать больше помещений, чем было окон.

Мы долго искали идеальную планировку отвечающую сложному тех заданию заказчиков. Важно было сделать личные зоны для детей и это удалось благодаря дополнительной двери у девочки и системе вентиляции у мальчика. Переделывали практически все, так как на момент покупки была свободная планировка.
Так же очень выручили окна - фрамуги в стенах детской мальчика и спальни, они дали больше света и легкости интерьеру.
Фото обмера
Фотография реализации
Процесс
создания интерьера
Кухня
Очень спокойный интерьер с тактичным вкраплением ярких деталей родился в ответ на пожелания заказчиков.

Молодая семья с новорожденным сыном хотела пространство для жизни, которое долго не надоест. Поэтому для стен и мебели я выбрала чуть «пыльные» серо-голубые оттенки, которые стали отличным фоном для ярких контрастных элементов. Цвет введен точечно в детали, которые при желании легко заменить.
Я даже не думал, что на нашей небольшой площади получится так развернуться.
Кухня -самое большое количество отделки деревом на кухне, в сочетании с яркой плиткой, она является активным узлом и дает настроение.
Фартук из синей плитки так же является акцентом.
Из кухни сдвижная дверь на открытый балкон с потрясающим видом на парк и реку.

На изображениях ниже - пример было/стало.
Алиса Свистунова
Гостиная
Очень спокойный интерьер с тактичным вкраплением ярких деталей родился в ответ на пожелания заказчиков.

Молодая семья с новорожденным сыном хотела пространство для жизни, которое долго не надоест. Поэтому для стен и мебели я выбрала чуть «пыльные» серо-голубые оттенки, которые стали отличным фоном для ярких контрастных элементов. Цвет введен точечно в детали, которые при желании легко заменить.
Я даже не думал, что на нашей небольшой площади получится так развернуться.
В гостиной из за недостатка естественного света добавили фрамуги в стенах и зеркальное панно, переходящее во фрамугу спальни.

Система освещения так же дает нам свободу действий и подчеркивает черные рамы зеркала. Синий цвет дивана поддерживает фартук кухни и картины автора проекта.

На изображениях ниже - пример процесса стройки было/стало.
Алиса Свистунова
Другие проекты
Возможно, Вам будет интересно посмотреть на другие мои проекты
Made on
Tilda