Квартира в подарок для мамы
Квартира
Метраж: 65 кв.м.
Город: Краснодар
Фотограф: Михаил Чекалов
Квартиру делали для мамы заказчика, квартира рассчитана на одного человека и приходящих родственников. Пожелания: сделать теплый, уютный интерьер, но с интересными фишками.
Задача:
Сделать удобные зоны для всех видов деятельности, вместить удобные шкафы в прихожей и придумать зону для стирки и сушки, большую кухню и оставить балкон под мини-сад.
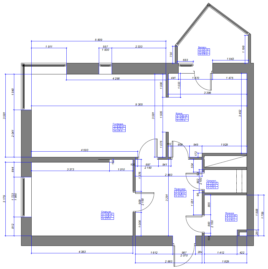
Исходная планировка
Планировочное решение
Идея проекта
Николай, хозяин квартиры
Получилось действительно комфортно.
Исходная планировка
Планировочное решение
Очень спокойный интерьер с тактичным вкраплением ярких деталей родился в ответ на пожелания заказчиков.

Молодая семья с новорожденным сыном хотела пространство для жизни, которое долго не надоест. Поэтому для стен и мебели я выбрала чуть «пыльные» серо-голубые оттенки, которые стали отличным фоном для ярких контрастных элементов. Цвет введен точечно в детали, которые при желании легко заменить.
Я даже не думал, что на нашей небольшой площади получится так развернуться.
Вдохновение пришло из истории жизни заказчицы.

Она несколько лет жила в Японии, и мы сделали некоторые акценты на восток.
Так же она очень любит гжель, что стало основой цветовых акцентов интерьера.

Использовали отсылки к французскому интерьеру и востоку в некоторых геометриях мебели и дверей.
В этом проекте мы сделали ставку на уют и функциональность.

Квартира находится в новом жилом комплексе, построенном в престижном районе Краснодара. Реализация заняла чуть больше года.

Оптимизация проекта шла детально, но играла большую роль в распределении вещей, стирки и готовки. Также выиграли маленькое, но зонированное место на входе под зону постирочной.
А также увеличивали кухню и гостиную за счет большой прихожей.

3D визуализация
Фотография
Процесс
создания интерьера
Гостиная - кухня
Очень спокойный интерьер с тактичным вкраплением ярких деталей родился в ответ на пожелания заказчиков.

Молодая семья с новорожденным сыном хотела пространство для жизни, которое долго не надоест. Поэтому для стен и мебели я выбрала чуть «пыльные» серо-голубые оттенки, которые стали отличным фоном для ярких контрастных элементов. Цвет введен точечно в детали, которые при желании легко заменить.
Я даже не думал, что на нашей небольшой площади получится так развернуться.
За счет изменения планировки в прихожей мы смогли улучшить оба помещения. Кухня выглядит компактно, но возможность хранения достаточно большая.
Гостиная осталась почти без изменений, а за счет больших витражных дверей в кухню мы запустили больше воздуха и света в оба помещения.

На изображениях ниже - пример было/стало.
Алиса Свистунова
Зона камина
Очень спокойный интерьер с тактичным вкраплением ярких деталей родился в ответ на пожелания заказчиков.

Молодая семья с новорожденным сыном хотела пространство для жизни, которое долго не надоест. Поэтому для стен и мебели я выбрала чуть «пыльные» серо-голубые оттенки, которые стали отличным фоном для ярких контрастных элементов. Цвет введен точечно в детали, которые при желании легко заменить.
Я даже не думал, что на нашей небольшой площади получится так развернуться.
Электрический камин интегрировали в стеллаж, эта зона носит больше декоративный характер, создает настроение и уют.
Но так же есть место для хранения книг и мелочей.
Рисунок штор поддерживает яркие пятна в интерьере.

На изображениях ниже - пример было/стало.
Алиса Свистунова
Дизайн - Алиса Свистунова для студии дизайна BonTon
Другие проекты
Возможно, Вам будет интересно посмотреть на другие мои проекты
Made on
Tilda