Дом с зеленой гостиной
Дом
Метраж: 350 кв.м.
Город: Краснодар
Фотограф: Михаил Чекалов
Стиль съемки: Катя Клее
Найти идеальное отражение семьи в интерьере. Учитывая, что дом был уже готов по стенам, то максимально улучшить планировку и зонирование, максимально работали с мебелью и декором.
Задача:
Супружеская пара, очень активные и умные люди. Нужно было семейное гнездо - некое место восстановления сил.
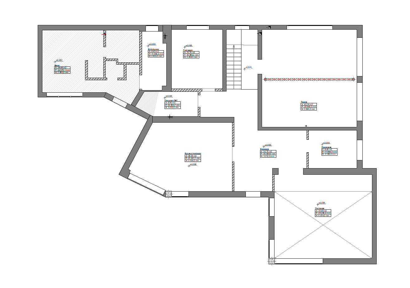
Исходная планировка
1 этаж
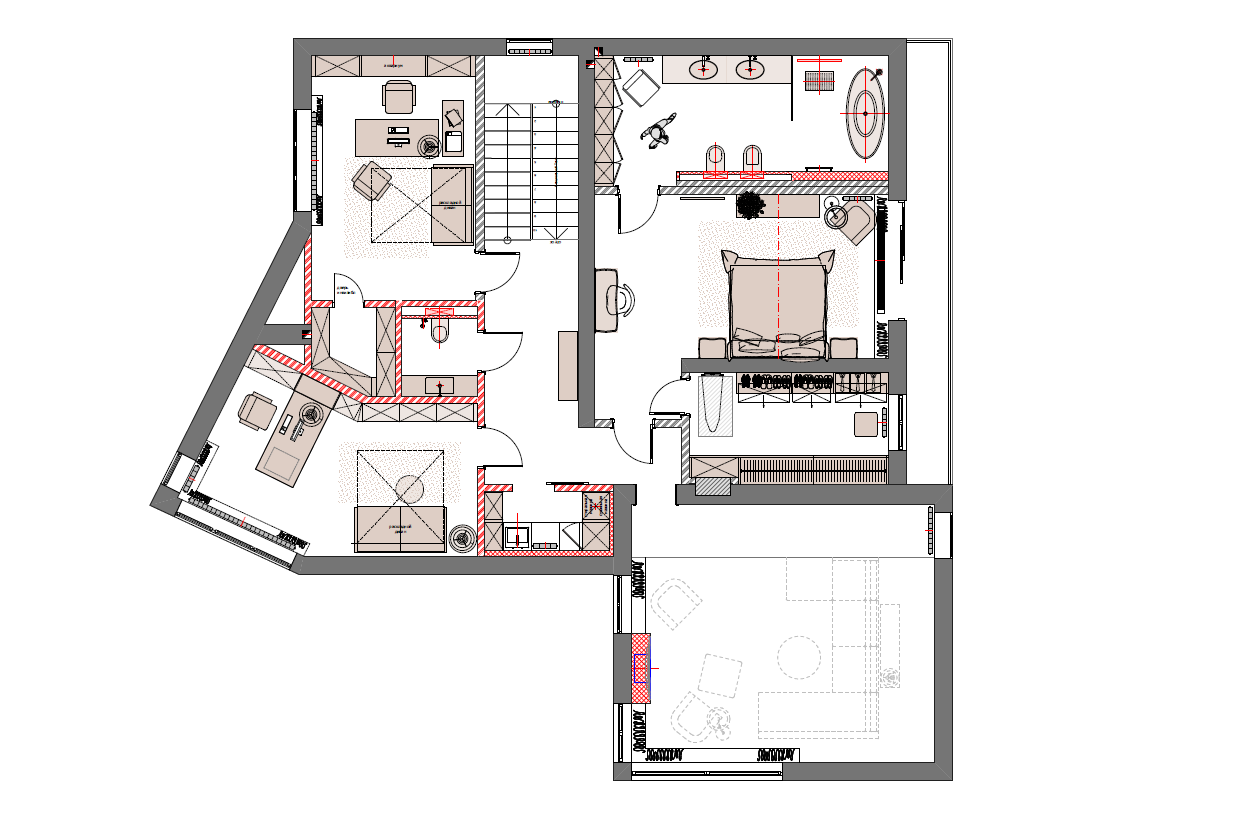
Планировочное решение 1 этаж
Исходная планировка
2 этаж
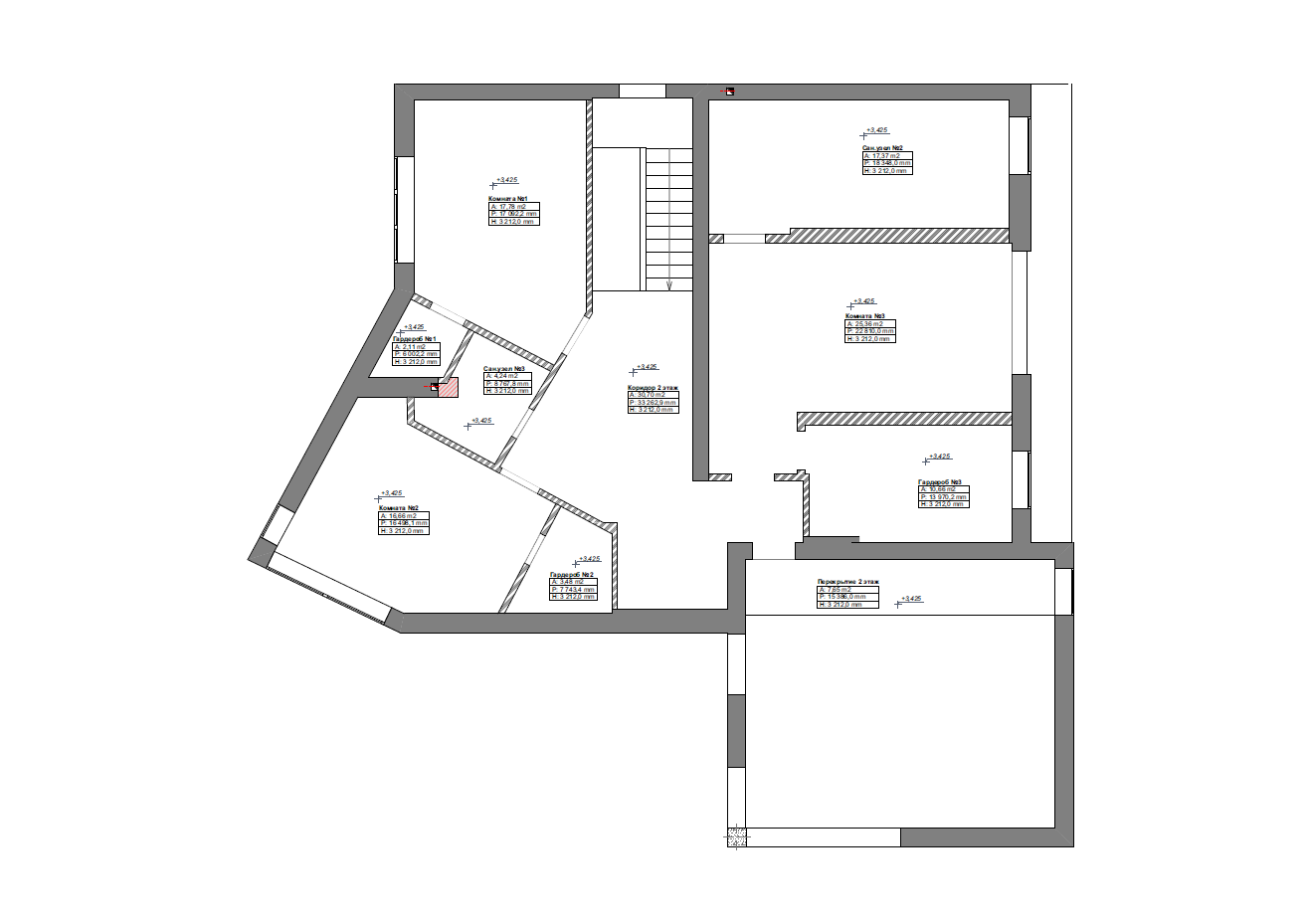
Планировочное решение 2 этаж
Идея проекта
Николай, хозяин квартиры
Получилось действительно комфортно.
Исходная планировка
Планировочное решение
Очень спокойный интерьер с тактичным вкраплением ярких деталей родился в ответ на пожелания заказчиков.

Молодая семья с новорожденным сыном хотела пространство для жизни, которое долго не надоест. Поэтому для стен и мебели я выбрала чуть «пыльные» серо-голубые оттенки, которые стали отличным фоном для ярких контрастных элементов. Цвет введен точечно в детали, которые при желании легко заменить.
Я даже не думал, что на нашей небольшой площади получится так развернуться.
Совершенно точно, вдохновение шло от самой хозяйки, точнее от ее запроса сделать традиционный классический дом, но можно и посмелее, предлагайте.

Мы и предложили, добавить яркости.

Хотелось удивить, развеселить и создать атмосферу уюта. Чтобы попадая домой, хозяева забывали о сложностях и каждый вечер был бы маленьким праздником.
В этом проекте мы подбирали все очень тщательно, каждая деталь не случайна и обоснована для заказчика и этого интерьера.

Так например свет подбирался очень декоративный, а плитка дала историю декоративного развития в каждом помещении. Корпусная мебель изготавливалась по нашим эскизам и индивидуальным выкрасам, в достаточно классическом стиле.
Палитра проекта очень разнообразна, но я бы выделила два направления - зеленую и синюю гаммы.
3D визуализация
Фотография
Процесс
создания интерьера
Прихожая
Очень спокойный интерьер с тактичным вкраплением ярких деталей родился в ответ на пожелания заказчиков.

Молодая семья с новорожденным сыном хотела пространство для жизни, которое долго не надоест. Поэтому для стен и мебели я выбрала чуть «пыльные» серо-голубые оттенки, которые стали отличным фоном для ярких контрастных элементов. Цвет введен точечно в детали, которые при желании легко заменить.
Я даже не думал, что на нашей небольшой площади получится так развернуться.
Классическая база с использованием современных элементов, французcкие, английские и современные приемы отделки.

Большое зеркально панно расширяет визуально ширину прихожей.
Так же в прихожей и холле большие стеллажи, которые несут не только функциональную нагрузку, но и декоративную.

На изображениях ниже - пример было/стало.
Алиса Свистунова
Спальня
Очень спокойный интерьер с тактичным вкраплением ярких деталей родился в ответ на пожелания заказчиков.

Молодая семья с новорожденным сыном хотела пространство для жизни, которое долго не надоест. Поэтому для стен и мебели я выбрала чуть «пыльные» серо-голубые оттенки, которые стали отличным фоном для ярких контрастных элементов. Цвет введен точечно в детали, которые при желании легко заменить.
Я даже не думал, что на нашей небольшой площади получится так развернуться.
Мастер спальня решена в светлой гамме - бело синей, с латунными акцентами в свете ручной работы и фурнитуре.
Почти белая покраска стен и потолка в один оттенок, лепнина на стенах и панно из состаренных зеркал.
Так же работа с ярким текстилем на контрасте дает яркий декор.
свет авторской работы

На изображениях ниже - пример было/стало.
Алиса Свистунова
Дизайн - Алиса Свистунова для студии дизайна BonTon
Другие проекты
Возможно, Вам будет интересно посмотреть на другие мои проекты
Made on
Tilda