Квартира с подиумом в центре города
Квартира
Метраж: 67 кв.м.
Город: Краснодар
Фотограф: Михаил Чекалов
За счет чёткого зонирования и встроенной мебели, сделанной на заказ, удалось в небольшую площадь уместить всё, что будет необходимо будущему хозяину квартиры.
Задача:
Сделать современное пространство
для молодого человека
со сложным, интересным зонированием.
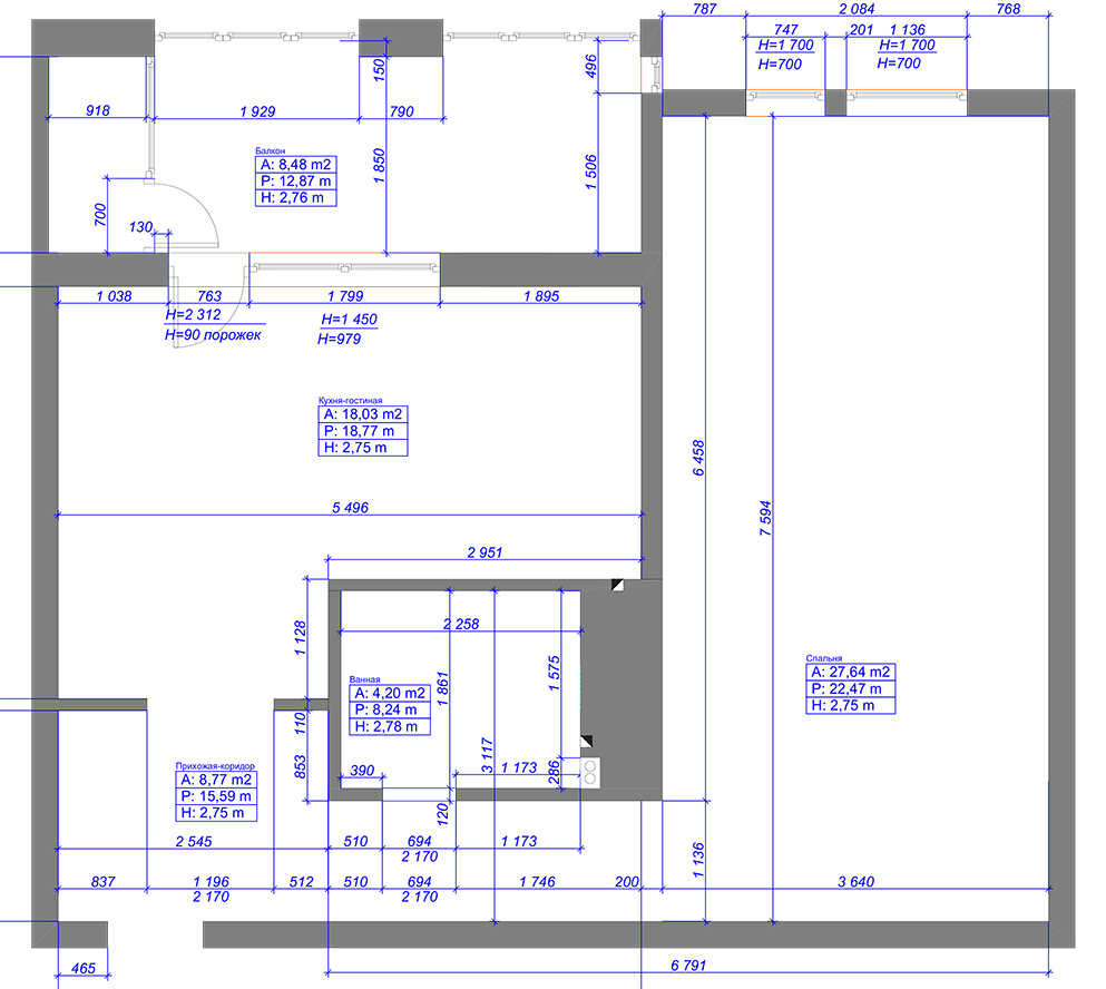
Исходная планировка
Планировочное решение
Идея проекта
Николай, хозяин квартиры
Получилось действительно комфортно.
Исходная планировка
Планировочное решение
Очень спокойный интерьер с тактичным вкраплением ярких деталей родился в ответ на пожелания заказчиков.

Молодая семья с новорожденным сыном хотела пространство для жизни, которое долго не надоест. Поэтому для стен и мебели я выбрала чуть «пыльные» серо-голубые оттенки, которые стали отличным фоном для ярких контрастных элементов. Цвет введен точечно в детали, которые при желании легко заменить.
Я даже не думал, что на нашей небольшой площади получится так развернуться.
У нас не было прицела на интерьер для семьи с детьми, отсюда и довольно смелые идеи планировки вроде подиума в спальне.

Здесь есть небольшой потенциал для расширения: например, в квартире может жить пара, но основной курс был на интерьер для одного человека строго под хозяина.

Заказчики хотели функциональный и строгий, но при этом уютный интерьер.
В этом проекте мы сделали акцент на необычное зонирование.

Квартира находится в новом жилом комплексе, построенном в самом центре Краснодара, и была куплена семьей молодого человека, который будет в ней жить. Сам проект сделали довольно быстро, а реализация с перерывами заняла примерно 1, 5 года.

Квартира сдавалась в бетоне, и первым делом в ней убрали всё, что можно. Не трогали разве что блок санузла, добавив к нему большой гардеробный шкаф со стороны прихожей.
3D визуализация
Фотография
Процесс
создания интерьера
Гостиная - кухня
Очень спокойный интерьер с тактичным вкраплением ярких деталей родился в ответ на пожелания заказчиков.

Молодая семья с новорожденным сыном хотела пространство для жизни, которое долго не надоест. Поэтому для стен и мебели я выбрала чуть «пыльные» серо-голубые оттенки, которые стали отличным фоном для ярких контрастных элементов. Цвет введен точечно в детали, которые при желании легко заменить.
Я даже не думал, что на нашей небольшой площади получится так развернуться.
Кухня-гостиная — центральное помещение этой квартиры. Мы согласовали снос балконных перегородок и значительно увеличили помещение. Комната стала светлой и просторной. Основную бытовую технику удалось встроить в единую сложную колонну. Кондиционер спрятали за кухонным фасадом, что не мешает его корректной работе.
Бар тоже нашел свое место в этом пространстве.

На изображениях ниже - пример было/стало.
Алиса Свистунова
Спальня-кабинет
Очень спокойный интерьер с тактичным вкраплением ярких деталей родился в ответ на пожелания заказчиков.

Молодая семья с новорожденным сыном хотела пространство для жизни, которое долго не надоест. Поэтому для стен и мебели я выбрала чуть «пыльные» серо-голубые оттенки, которые стали отличным фоном для ярких контрастных элементов. Цвет введен точечно в детали, которые при желании легко заменить.
Я даже не думал, что на нашей небольшой площади получится так развернуться.
Кровать на подиуме — это личная мечта хозяина квартиры. И при такой вытянутой форме помещения это просьба оказалась вполне уместной.
Комната поделена на три логические части: гардеробная за зеркальными панелями, кабинет в центре комнаты и спальня у окна.
Вся мебель в этой комнате сделана на заказ, чтобы выиграть максимум удобства и пространства.

На изображениях ниже - пример было/стало.
Алиса Свистунова
Другие проекты
Возможно, Вам будет интересно посмотреть на другие мои проекты
Made on
Tilda